CONSULTATION ET DESIGN

SYSTÈMES DE PALETTIERS

INSPECTIONS ET RÉPARATIONS

CONSULTATION ET DESIGN
Services de conception d’entrepôts avec Rebelrack:
Chez Rebelrack, nous sommes spécialisés dans des solutions de racking d’entrepôt sur mesure, parfaitement adaptées à vos besoins de stockage. Nos services de conception complète comprennent :
- Évaluation des besoins : Notre équipe analyse la configuration actuelle de votre entrepôt et identifie les améliorations nécessaires. Grâce à cette évaluation, nous pouvons proposer des systèmes de racking qui maximisent votre espace.
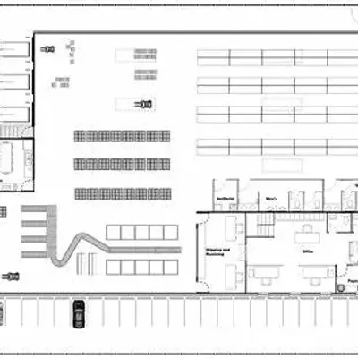
- Conception conceptuelle : Nous utilisons des outils CAO avancés pour créer plusieurs mises en page, vous permettant de visualiser différentes options de palettiers et d’étagères d’entrepôt adaptées à votre entreprise.
- Conception détaillée : Une fois que vous aurez choisi un concept, nous finalisons la conception avec des spécifications précises, assurant ainsi une utilisation optimale de votre espace tout en respectant les normes de sécurité en vigueur.
- Planification de l’installation : Notre équipe organise le processus de rack installation, en intégrant le nouveau système de rayonnage avec un minimum de perturbations pour vos opérations.
- Faites confiance à Rebelrack pour transformer votre entrepôt grâce à des solutions de rayonnage efficaces et adaptées à vos exigences de stockage. Avec notre expertise, vous maximiserez votre productivité tout en optimisant votre espace d’entreposage.
Notre objectif est de vous aider à maximiser la capacité de stockage dans votre entrepôt tout en améliorant l’efficacité opérationnelle et en garantissant un environnement de travail sécurisé. Grâce à nos solutions de rayonnage d’entrepôt, nous vous accompagnons dans l’optimisation de votre espace de stockage. Contactez-nous dès aujourd’hui pour découvrir comment nos services de conception de rayonnage peuvent transformer votre entrepôt en un lieu de travail plus productif et adapté à vos besoins. Ne laissez pas votre espace de stockage sous-exploité ; faites appel à nos experts pour des solutions sur mesure qui répondent à vos exigences.

INSPECTIONS ET RÉPARATIONS
La sécurité de vos rayonnages est prioritaire
Chez Rebelrack, nous proposons des services complets d’inspection et de réparation pour garantir la sécurité et la durabilité de vos systèmes de rayonnage d’entrepôt. Nos services inclu chez Rebelrack, nous proposons des services complets d’inspection et de réparation pour garantir la sécurité et la durabilité de vos systèmes de rayonnage d’entrepôt. Nos services incluent :
- Inspections régulières : Notre équipe réalise des inspections approfondies de vos étagères d’entrepôt et palettiers, détectant tout dommage ou problème potentiel. Nous veillons à ce que vos systèmes de rayonnage respectent les normes de sécurité en vigueur.
- Rapports détaillés : Nous vous fournissons des rapports complets sur l’état de vos rayonnages, incluant des recommandations pour des réparations ou de la maintenance nécessaires.
- Réparations expertes : Nos techniciens qualifiés effectuent des réparations rapides et efficaces sur vos racking pour résoudre les problèmes identifiés. Cela minimise les temps d’arrêt et contribue à conserver votre efficacité opérationnelle.
- Maintenance préventive : Nous offrons des plans de maintenance préventive adaptés à vos besoins, vous aidant à éviter des réparations coûteuses tout en prolongeant la durée de vie de vos systèmes de rayonnage.
En choisissant nos services, vous garantissez la sécurité, la conformité et la performance optimale de vos systèmes de rayonnage dans votre entrepôt. Contactez Rebelrack dès aujourd’hui pour une inspection et une maintenance fiables de vos installations.

